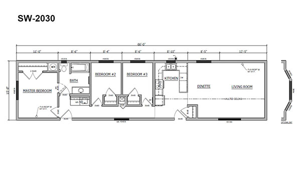
Single Wide Floor Plans
Modulux Design Ltd takes pride in presenting a diverse array of single-wide floor plans, catering to a spectrum of preferences and requirements. Our collection encompasses a rich variety of layouts, each meticulously crafted to optimize space, functionality, and aesthetic appeal. Across all our models, we uphold a commitment to quality by including numerous standard features designed to enhance comfort and convenience for homeowners

From modern kitchens to spacious living areas, our homes are thoughtfully equipped with amenities to meet everyday needs. Furthermore, we understand the importance of personalization, which is why we offer a range of optional features and upgrades to tailor your home to your unique tastes and lifestyle.
Whether you’re seeking a cozy retreat or a stylish modern abode, Modulux Design Ltd has the perfect single-wide floor plan to fulfill your vision of homeoes Here
Browse Our Selection Of Single Wide Floor Plans

SW-1450-BR

SW-1452-BR

SW-1456-BR

SW-1460A-BR

SW-1460B-BR

SW-1466-BR

SW-1654-BR

SW-1658A-BR

SW-1658B-BR

SW-1665-BR

